takeofficeなら掲載物件の仲介手数料は無料です

日本生命三番町ビル

住所 東京都千代田区三番町6-14
交通 東京メトロ半蔵門線九段下」 徒歩5分
JR総武本線市ヶ谷」 徒歩10分
東京メトロ有楽町線市ヶ谷」 徒歩10分
竣工 1982年 月 構造 SRC
規模 地上9階, 地下1階 耐震基準 新耐震基準
床構造 フリーアクセス 50mm 空調設備 フロア別空調
天井高 2500mm 基準階面積 127坪(423m2)
コンセント容量 - 施工会社

最新の募集状況や類似物件については、
こちらにお問い合わせください。

日本生命三番町ビル 外観

外観

  • 日本生命三番町ビル エントランス写真

    エントランス

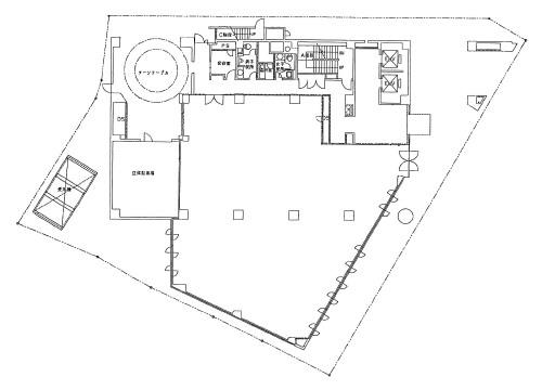
  • 基準階(3~4F)

    基準階(3~4F)

  • 1F

    1F

  • 5~8F

    5~8F

内見やお見積りなどの各種お問い合わせ

全物件
仲介手数料無料
仲介から
入居工事まで
ワンストップで対応
経験豊富なスタッフが
スピード感をもって
対応

周辺での似た条件の物件

非公開物件 多数あり!

お問い合わせフォーム