takeofficeなら掲載物件の仲介手数料は無料です

五番町Kビル

住所 東京都千代田区五番町12
交通 JR総武本線市ヶ谷」 徒歩4分
竣工 1991年12月 構造 RC
規模 地上4階 耐震基準 新耐震基準
床構造 フリーアクセス 50mm 空調設備 個別空調
天井高 2500mm 基準階面積 60.19坪(198.98m2)
コンセント容量 - 施工会社

最新の募集状況や類似物件については、
こちらにお問い合わせください。

五番町Kビル 外観

外観

  • 五番町Kビル エントランス写真

    エントランス

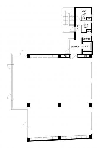
  • 基準階(3~4F)

    基準階(3~4F)

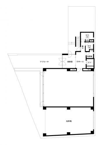
  • 1F

    1F

  • 2F

    2F

内見やお見積りなどの各種お問い合わせ

全物件
仲介手数料無料
仲介から
入居工事まで
ワンストップで対応
経験豊富なスタッフが
スピード感をもって
対応

周辺での似た条件の物件

非公開物件 多数あり!

お問い合わせフォーム