takeofficeなら掲載物件の仲介手数料は無料です

日テレ四番町ビル2号館

住所 東京都千代田区四番町7-8
交通 東京メトロ有楽町線麹町」 徒歩2分
JR総武本線市ヶ谷」 徒歩6分
JR中央線四ツ谷」 徒歩6分
竣工 1984年10月 構造 SRC
規模 地上6階, 地下1階 耐震基準 新耐震基準
床構造 - 空調設備 個別空調
天井高 2400mm 基準階面積 78坪(257.85m2)
コンセント容量 - 施工会社

最新の募集状況や類似物件については、
こちらにお問い合わせください。

日テレ四番町ビル2号館 外観

外観

  • 日テレ四番町ビル2号館 エントランス写真

    エントランス

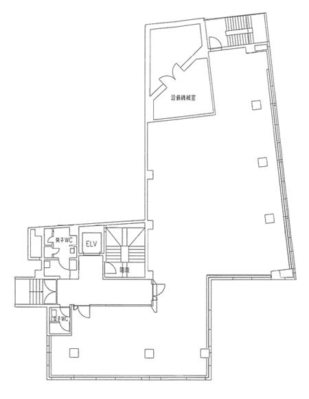
  • 2F

    2F

  • 1F

    1F

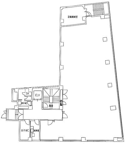
  • 3F

    3F

  • 4F

    4F

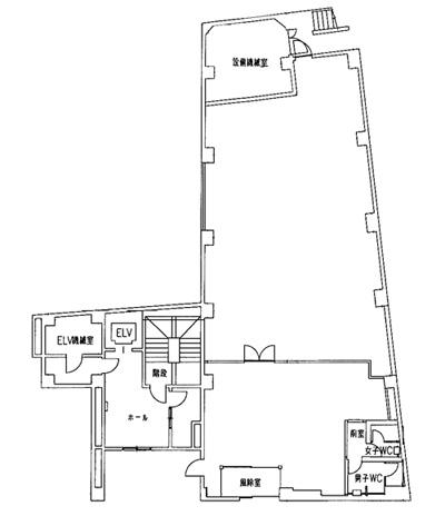
  • 5F

    5F

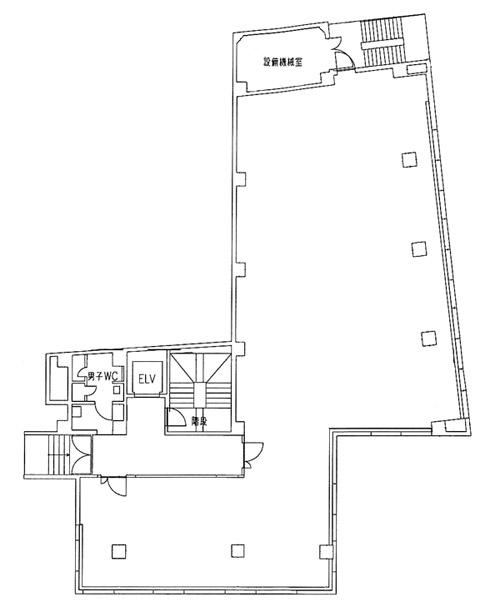
  • 6F

    6F

内見やお見積りなどの各種お問い合わせ

全物件
仲介手数料無料
仲介から
入居工事まで
ワンストップで対応
経験豊富なスタッフが
スピード感をもって
対応

周辺での似た条件の物件

非公開物件 多数あり!

お問い合わせフォーム