takeofficeなら掲載物件の仲介手数料は無料です

(仮称)三番町計画

住所 東京都千代田区三番町6
交通 東京メトロ半蔵門線半蔵門」 徒歩7分
東京メトロ半蔵門線九段下」 徒歩11分
JR総武本線市ヶ谷」 徒歩11分
竣工 2009年09月 構造 鉄骨造+SRC
規模 地上15階, 地下1階 耐震基準 新耐震基準
床構造 フリーアクセス 空調設備 個別空調
天井高 2800mm 基準階面積 503坪(1662.81m2)
コンセント容量 75VA/m2 施工会社

最新の募集状況や類似物件については、
こちらにお問い合わせください。

NOW PRINTING

外観

  • NOW PRINTING

    エントランス

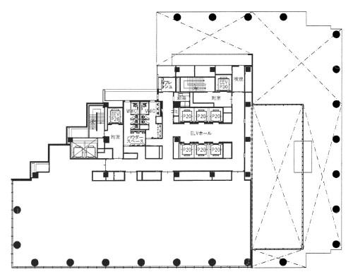
  • 基準階(3~10F)

    基準階(3~10F)

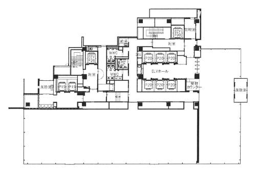
  • 1F

    1F

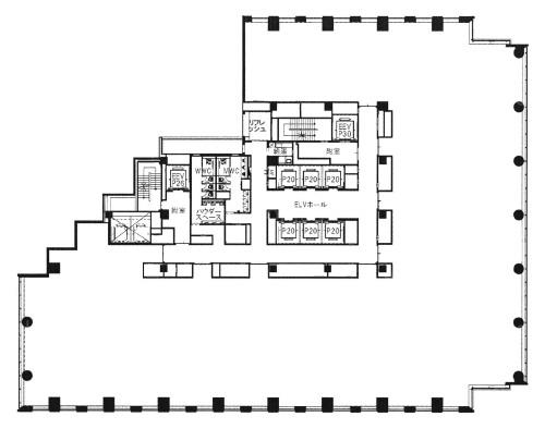
  • 2F

    2F

内見やお見積りなどの各種お問い合わせ

全物件
仲介手数料無料
仲介から
入居工事まで
ワンストップで対応
経験豊富なスタッフが
スピード感をもって
対応

周辺での似た条件の物件

非公開物件 多数あり!

お問い合わせフォーム