takeofficeなら掲載物件の仲介手数料は無料です

G-TERRACE紀尾井町(旧:紀尾井町ケルトンビル)

住所 東京都千代田区紀尾井町4-5
交通 東京メトロ有楽町線麹町」 徒歩5分
東京メトロ半蔵門線永田町」 徒歩6分
東京メトロ銀座線赤坂見附」 徒歩5分
竣工 1991年 月 構造 SRC
規模 地上10階, 地下1階 耐震基準 新耐震基準
床構造 フリーアクセス 40mm 空調設備 個別空調
天井高 2550mm 基準階面積 155.14坪(512.86m2)
コンセント容量 90VA/m2 施工会社

最新の募集状況や類似物件については、
こちらにお問い合わせください。

G-TERRACE紀尾井町(旧:紀尾井町ケルトンビル) 外観

外観

  • NOW PRINTING

    エントランス

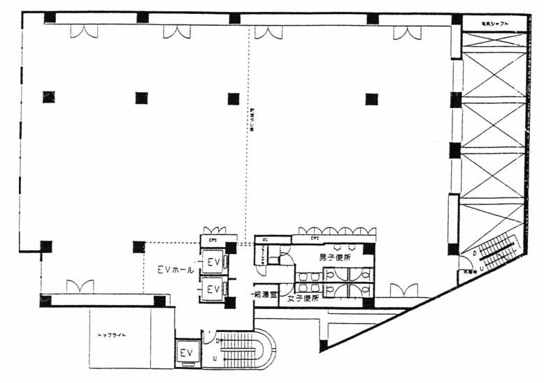
  • 基準階(5~7F)

    基準階(5~7F)

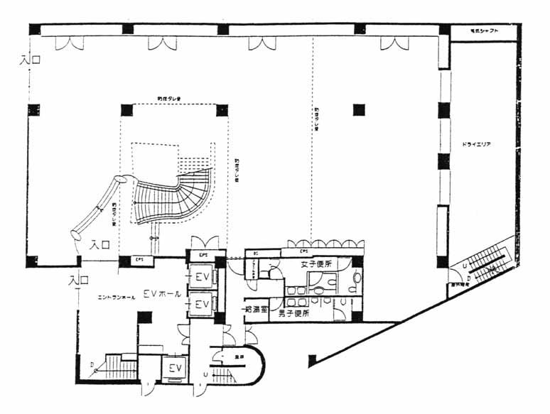
  • 1F

    1F

  • 2F

    2F

  • 3~4F

    3~4F

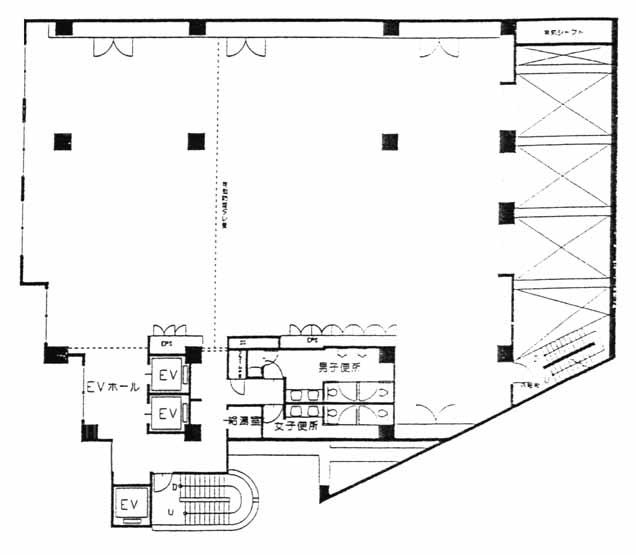
  • 8F

    8F

建物パンフレット

建物パンフレットは作成時点のものであり、また計画段階のものも含まれる為、実際とは異なる場合がございます。

内見やお見積りなどの各種お問い合わせ

全物件
仲介手数料無料
仲介から
入居工事まで
ワンストップで対応
経験豊富なスタッフが
スピード感をもって
対応

周辺での似た条件の物件

非公開物件 多数あり!

お問い合わせフォーム