| 住所 | 東京都千代田区麹町2-10-7 | ||
|---|---|---|---|
| 交通 |
東京メトロ半蔵門線 「半蔵門」 徒歩1分 東京メトロ有楽町線 「麹町」 徒歩5分 |
||
| 竣工 | 1993年11月 | 構造 | SRC |
|---|---|---|---|
| 規模 | 地上6階, 地下1階 | 耐震基準 | 新耐震基準 |
| 床構造 | フリーアクセス 85mm | 空調設備 | 個別空調 |
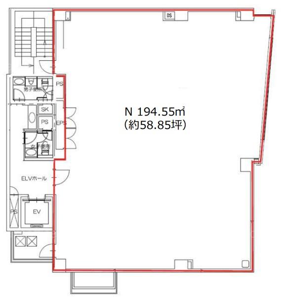
| 天井高 | 2600mm | 基準階面積 | 58.85坪(194.55m2) |
| コンセント容量 | - | 施工会社 |
| 階 | 坪面積 | 用途 | 賃料 | 坪単価 | 共益費 | 入居可能日 |
|---|---|---|---|---|---|---|
| 6 | 47.36坪 | 事務所 | 相談 | 相談 | 相談 | 即 |
| 1 | 54.07坪 | 事務所 | 相談 | 相談 | 相談 | 即 |
| 2 | 64.57坪 | 事務所 | 相談 | 相談 | 相談 | 即 |
| 4 | 64.57坪 | 事務所 | 相談 | 相談 | 相談 | 即 |
| 5 | 62.02坪 | 事務所 | 相談 | 相談 | 相談 | 即 |
※「ご相談」と記載されている項目について
賃貸人が募集賃料条件を守秘義務の関係から明示していない場合に、【ご相談】と記載しております。
フリーレント(賃料免除)期間、使用面積、入居時期、テナント様の与信などによりご提示できる条件が若干変化いたします。
お手数ですが、詳細につきましては、上記よりお問い合わせください。