takeofficeなら掲載物件の仲介手数料は無料です

麹町アネックスビル

住所 東京都千代田区麹町4-5-10
交通 東京メトロ有楽町線麹町」 徒歩2分
東京メトロ半蔵門線半蔵門」 徒歩6分
竣工 1978年05月 構造 RC
規模 地上7階, 地下1階 耐震基準 旧耐震基準
床構造 - 空調設備 個別空調
天井高 - 基準階面積 50坪(166m2)
コンセント容量 - 施工会社

最新の募集状況や類似物件については、
こちらにお問い合わせください。

麹町アネックスビル 外観

外観

  • 麹町アネックスビル エントランス写真

    エントランス

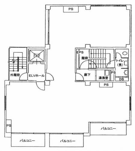
  • 基準階(2~4F)

    基準階(2~4F)

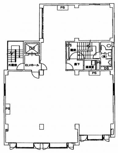
  • 5F

    5F

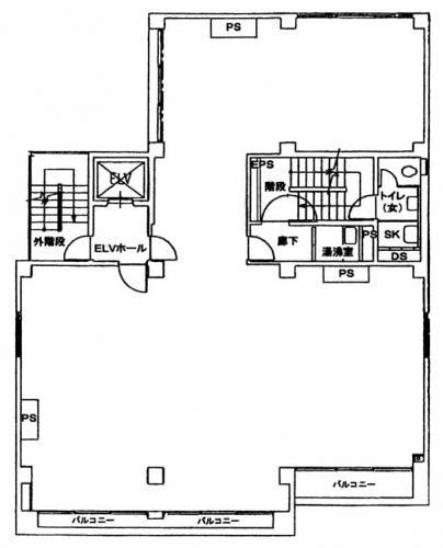
  • 6F

    6F

  • 7F

    7F

  • B1F

    B1F

内見やお見積りなどの各種お問い合わせ

全物件
仲介手数料無料
仲介から
入居工事まで
ワンストップで対応
経験豊富なスタッフが
スピード感をもって
対応

周辺での似た条件の物件

非公開物件 多数あり!

お問い合わせフォーム