takeofficeなら掲載物件の仲介手数料は無料です

装道教育会館

住所 東京都千代田区麹町4-4-1
交通 東京メトロ有楽町線麹町」 徒歩4分
JR中央線四ツ谷」 徒歩6分
竣工 1971年03月 構造 SRC
規模 地上8階, 地下1階 耐震基準 旧耐震基準
床構造 フリーアクセス 50mm 空調設備 個別空調
天井高 2500mm 基準階面積 83.31坪(275.4m2)
コンセント容量 70VA/m2 施工会社

最新の募集状況や類似物件については、
こちらにお問い合わせください。

装道教育会館 外観

外観

  • NOW PRINTING

    エントランス

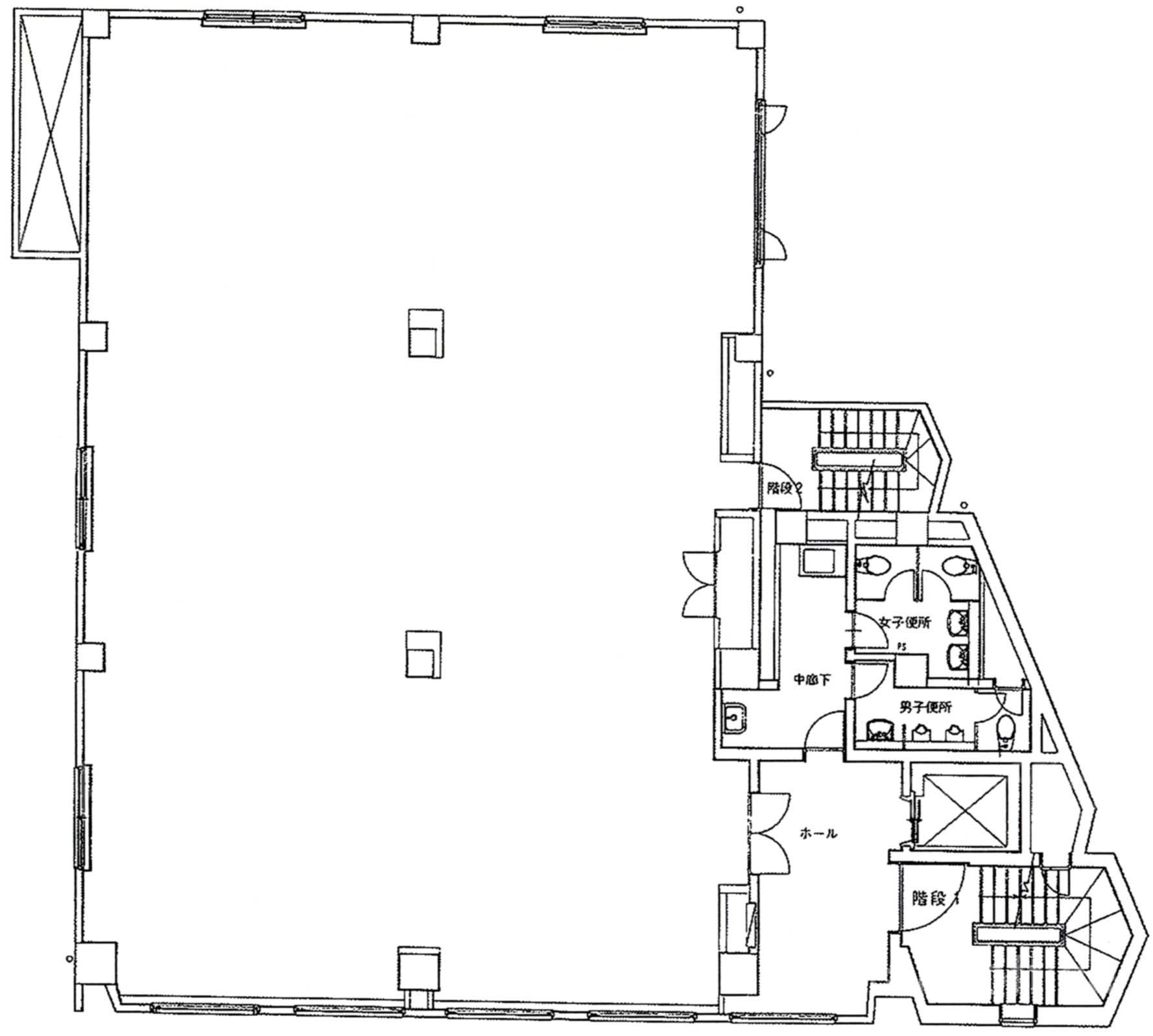
  • 基準階 2~6F

    基準階 2~6F

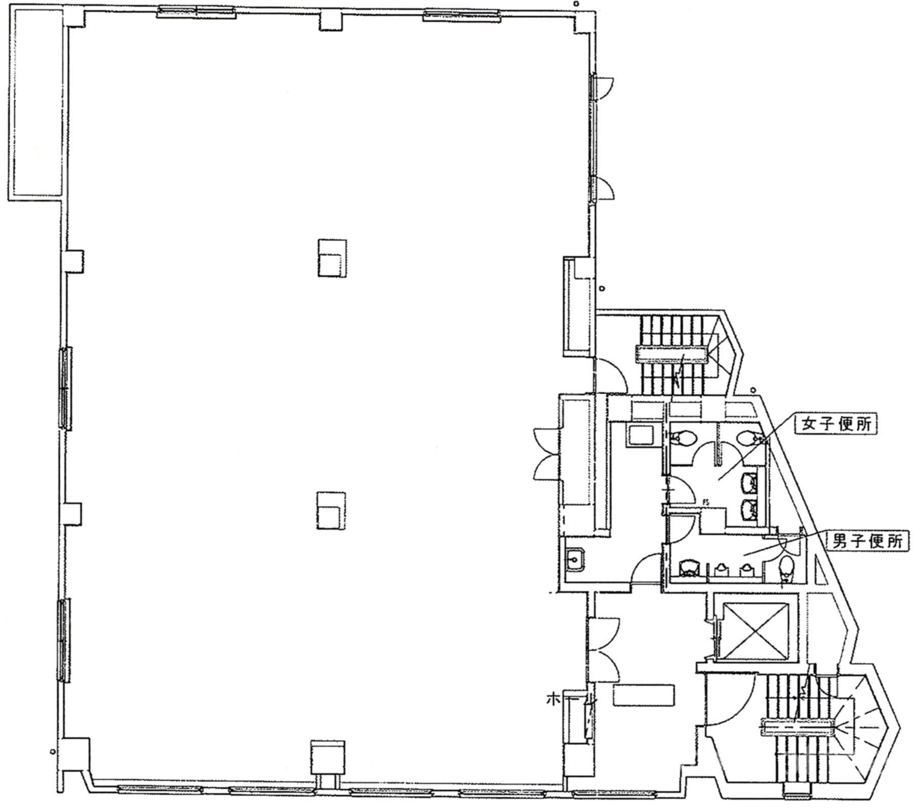
  • 7F

    7F

内見やお見積りなどの各種お問い合わせ

全物件
仲介手数料無料
仲介から
入居工事まで
ワンストップで対応
経験豊富なスタッフが
スピード感をもって
対応

周辺での似た条件の物件

非公開物件 多数あり!

お問い合わせフォーム