takeofficeなら掲載物件の仲介手数料は無料です

せんりゅうどうビル

住所 東京都千代田区隼町3-6
交通 東京メトロ半蔵門線半蔵門」 徒歩2分
東京メトロ半蔵門線永田町」 徒歩5分
竣工 1995年 月 構造 鉄骨造
規模 地上2階, 地下0階 耐震基準 新耐震基準
床構造 - 空調設備 個別空調
天井高 - 基準階面積 --
コンセント容量 - 施工会社

最新の募集状況や類似物件については、
こちらにお問い合わせください。

NOW PRINTING

外観

  • NOW PRINTING

    エントランス

  • 基準階

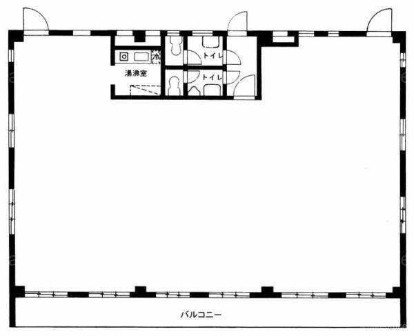
    基準階

  • 1F

    1F

内見やお見積りなどの各種お問い合わせ

全物件
仲介手数料無料
仲介から
入居工事まで
ワンストップで対応
経験豊富なスタッフが
スピード感をもって
対応

周辺での似た条件の物件

非公開物件 多数あり!

お問い合わせフォーム