takeofficeなら掲載物件の仲介手数料は無料です

Orchid Square(オーキッドスクエア)

住所 東京都千代田区有楽町1-2-11
交通 東京メトロ日比谷線日比谷」 徒歩3分
JR山手線有楽町」 徒歩4分
東京メトロ有楽町線有楽町」 徒歩4分
竣工 2009年01月 構造 RC
規模 地上8階, 地下1階 耐震基準 新耐震基準
床構造 - 空調設備
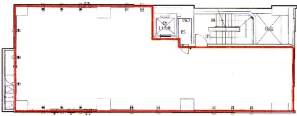
天井高 3550mm 基準階面積 47.31坪(156.4m2)
コンセント容量 - 施工会社

最新の募集状況や類似物件については、
こちらにお問い合わせください。

Orchid Square(オーキッドスクエア) 外観

外観

内見やお見積りなどの各種お問い合わせ

全物件
仲介手数料無料
仲介から
入居工事まで
ワンストップで対応
経験豊富なスタッフが
スピード感をもって
対応

周辺での似た条件の物件

非公開物件 多数あり!

お問い合わせフォーム