takeofficeなら掲載物件の仲介手数料は無料です

丸の内中央ビル

住所 東京都千代田区丸の内1-9-1
交通 JR山手線東京」 徒歩1分
東京メトロ丸ノ内線東京」 徒歩1分
東京メトロ東西線大手町」 徒歩1分
竣工 2003年03月 構造 鉄骨造+SRC
規模 地上14階, 地下3階 耐震基準 新耐震基準
床構造 フリーアクセス 100mm 空調設備 ゾーン空調
天井高 2700mm 基準階面積 462.97坪(1530.48m2)
コンセント容量 - 施工会社

最新の募集状況や類似物件については、
こちらにお問い合わせください。

丸の内中央ビル 外観

外観

  • NOW PRINTING

    エントランス

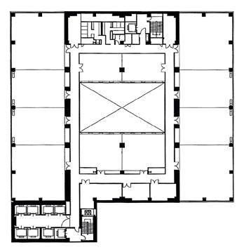
  • 基準階

    基準階

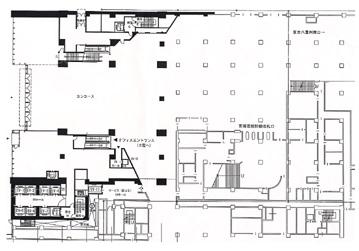
  • 1F

    1F

  • 2F

    2F

建物パンフレット

建物パンフレットは作成時点のものであり、また計画段階のものも含まれる為、実際とは異なる場合がございます。

内見やお見積りなどの各種お問い合わせ

全物件
仲介手数料無料
仲介から
入居工事まで
ワンストップで対応
経験豊富なスタッフが
スピード感をもって
対応

周辺での似た条件の物件

非公開物件 多数あり!

お問い合わせフォーム