takeofficeなら掲載物件の仲介手数料は無料です

パレスビル

住所 東京都千代田区丸の内1-1-1
交通 JR山手線東京」 徒歩8分
東京メトロ東西線大手町」 徒歩1分
竣工 2012年01月 構造 鉄骨造+SRC
規模 地上23階, 地下4階 耐震基準 新耐震基準
床構造 フリーアクセス 150mm 空調設備 ゾーン空調
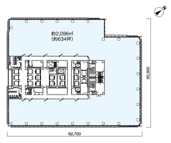
天井高 2900mm 基準階面積 627.28坪(2073.65m2)
コンセント容量 75VA/m2 施工会社

最新の募集状況や類似物件については、
こちらにお問い合わせください。

パレスビル 外観

外観

  • パレスビル エントランス写真

    エントランス

  • 基準階

    基準階

建物パンフレット

建物パンフレットは作成時点のものであり、また計画段階のものも含まれる為、実際とは異なる場合がございます。

内見やお見積りなどの各種お問い合わせ

全物件
仲介手数料無料
仲介から
入居工事まで
ワンストップで対応
経験豊富なスタッフが
スピード感をもって
対応

周辺での似た条件の物件

非公開物件 多数あり!

お問い合わせフォーム