takeofficeなら掲載物件の仲介手数料は無料です

MSH日本橋箱崎ビル

住所 東京都中央区日本橋箱崎町19-21
交通 東京メトロ半蔵門線水天宮前」 徒歩3分
東京メトロ日比谷線茅場町」 徒歩7分
東京メトロ日比谷線人形町」 徒歩12分
竣工 1989年03月 構造 SRC
規模 地上25階, 地下3階 耐震基準 新耐震基準
床構造 フリーアクセス 60mm 空調設備 ゾーン空調
天井高 2600mm 基準階面積 1044.6坪(3453.22m2)
コンセント容量 - 施工会社 竹中工務店

最新の募集状況や類似物件については、
こちらにお問い合わせください。

MSH日本橋箱崎ビル 外観

外観

  • MSH日本橋箱崎ビル エントランス写真

    エントランス

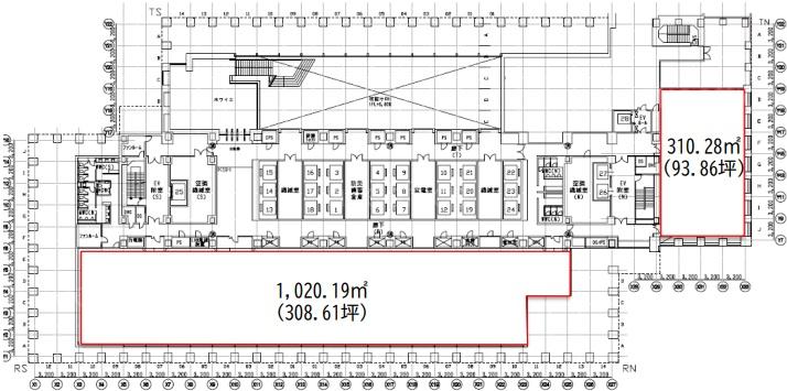
  • 基準階

    基準階

  • 2F

    2F

内見やお見積りなどの各種お問い合わせ

全物件
仲介手数料無料
仲介から
入居工事まで
ワンストップで対応
経験豊富なスタッフが
スピード感をもって
対応

周辺での似た条件の物件

非公開物件 多数あり!

お問い合わせフォーム