takeofficeなら掲載物件の仲介手数料は無料です

ワカ末ビル

住所 東京都中央区日本橋本町3-3-6
交通 JR総武線(快速)新日本橋」 徒歩1分
東京メトロ半蔵門線三越前」 徒歩2分
JR山手線神田」 徒歩5分
竣工 1961年08月 構造 SRC
規模 地上9階, 地下2階 耐震基準 耐震診断書有
床構造 フリーアクセス 50mm 空調設備 個別空調
天井高 2550mm 基準階面積 314.52坪(1039.74m2)
コンセント容量 30VA/m2 施工会社
坪面積 用途 賃料 坪単価 共益費 入居可能日
6 314.52坪 事務所 相談 相談 相談 2026年4月1日
ワカ末ビル 外観

外観

  • ワカ末ビル エントランス写真

    エントランス

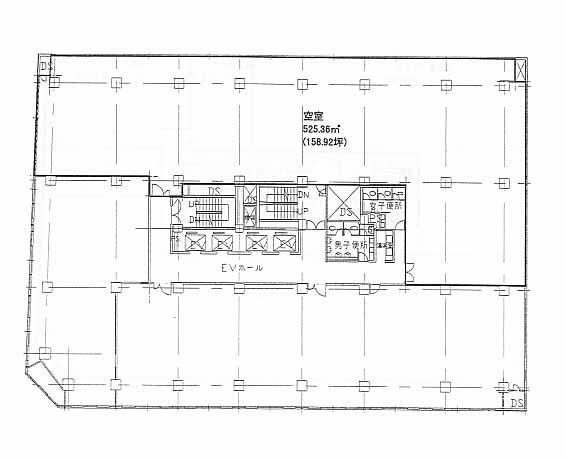
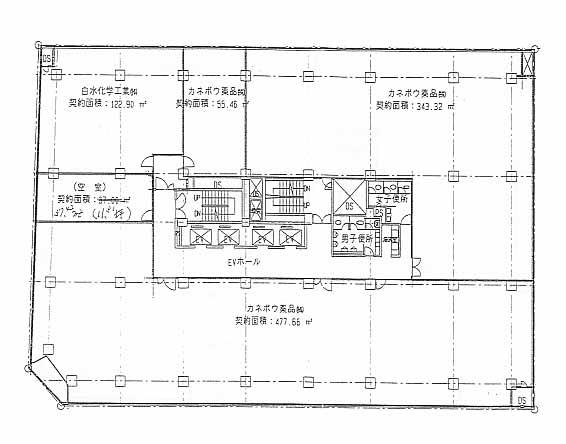
  • 基準階(4~8F)

    基準階(4~8F)

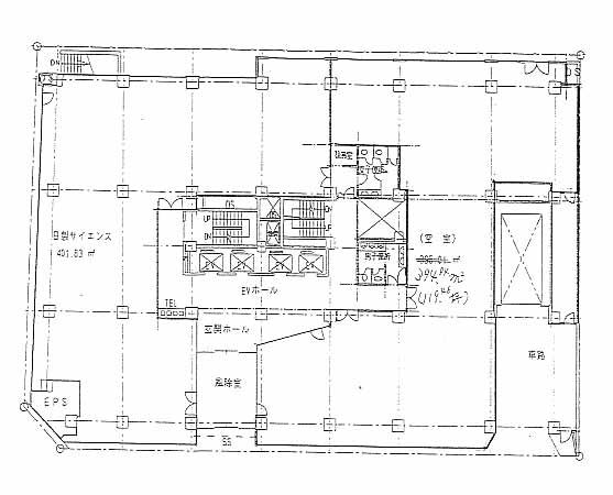
  • 1F

    1F

  • 2~3F

    2~3F

  • 9F

    9F

建物パンフレット

建物パンフレットは作成時点のものであり、また計画段階のものも含まれる為、実際とは異なる場合がございます。

内見やお見積りなどの各種お問い合わせ

全物件
仲介手数料無料
仲介から
入居工事まで
ワンストップで対応
経験豊富なスタッフが
スピード感をもって
対応

※「ご相談」と記載されている項目について
賃貸人が募集賃料条件を守秘義務の関係から明示していない場合に、【ご相談】と記載しております。
フリーレント(賃料免除)期間、使用面積、入居時期、テナント様の与信などによりご提示できる条件が若干変化いたします。
お手数ですが、詳細につきましては、上記よりお問い合わせください。

周辺での似た条件の物件

非公開物件 多数あり!

お問い合わせフォーム