takeofficeなら掲載物件の仲介手数料は無料です

室町古河三井ビルディング

住所 東京都中央区日本橋室町2-3-1
交通 東京メトロ半蔵門線三越前」 徒歩1分
JR総武線(快速)新日本橋」 徒歩1分
JR山手線神田」 徒歩9分
竣工 2014年02月 構造 鉄骨造+SRC
規模 地上22階, 地下4階 耐震基準 新耐震基準
床構造 フリーアクセス 100mm 空調設備 ゾーン空調
天井高 3000mm 基準階面積 557.44坪(1842.78m2)
コンセント容量 60VA/m2 施工会社 清水建設
坪面積 用途 賃料 坪単価 共益費 入居可能日
9 167.44坪 事務所 募集終了登録日: 2025年04月14日
室町古河三井ビルディング 外観

外観

  • 室町古河三井ビルディング エントランス写真

    エントランス

  • 基準階(8~17F)

    基準階(8~17F)

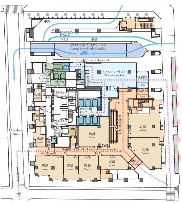
  • 1F

    1F

  • B1F

    B1F

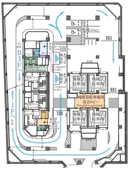
  • B2F

    B2F

内見やお見積りなどの各種お問い合わせ

全物件
仲介手数料無料
仲介から
入居工事まで
ワンストップで対応
経験豊富なスタッフが
スピード感をもって
対応

※「ご相談」と記載されている項目について
賃貸人が募集賃料条件を守秘義務の関係から明示していない場合に、【ご相談】と記載しております。
フリーレント(賃料免除)期間、使用面積、入居時期、テナント様の与信などによりご提示できる条件が若干変化いたします。
お手数ですが、詳細につきましては、上記よりお問い合わせください。

周辺での似た条件の物件

非公開物件 多数あり!

お問い合わせフォーム