takeofficeなら掲載物件の仲介手数料は無料です

VORT東京八重洲maxim

住所 東京都中央区八重洲1-3-18
交通 東京メトロ銀座線日本橋」 徒歩2分
東京メトロ丸ノ内線大手町」 徒歩2分
JR山手線東京」 徒歩3分
竣工 2024年06月 構造 SRC
規模 地上14階, 地下1階 耐震基準 新耐震基準
床構造 フリーアクセス 50mm 空調設備 個別空調
天井高 2700mm 基準階面積 94.37坪(311.97m2)
コンセント容量 60VA/m2 施工会社
坪面積 用途 賃料 坪単価 共益費 入居可能日
9 94.37坪 事務所 相談 相談 相談
10 94.37坪 事務所 相談 相談 相談
VORT東京八重洲maxim 外観

外観

  • VORT東京八重洲maxim エントランス写真

    エントランス

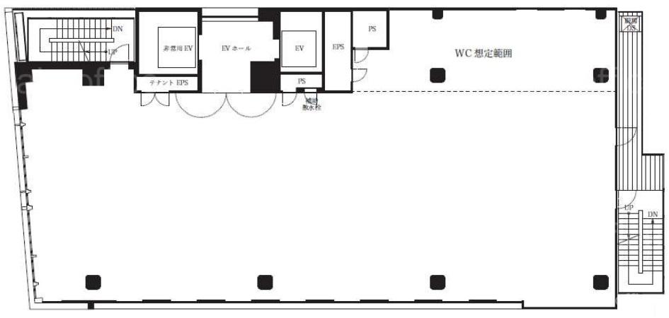
  • 基準階(6〜14F)

    基準階(6〜14F)

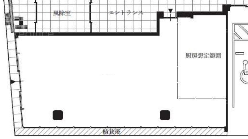
  • 1F

    1F

  • 2F

    2F

  • 3〜5F

    3〜5F

  • B1F

    B1F

内見やお見積りなどの各種お問い合わせ

全物件
仲介手数料無料
仲介から
入居工事まで
ワンストップで対応
経験豊富なスタッフが
スピード感をもって
対応

※「ご相談」と記載されている項目について
賃貸人が募集賃料条件を守秘義務の関係から明示していない場合に、【ご相談】と記載しております。
フリーレント(賃料免除)期間、使用面積、入居時期、テナント様の与信などによりご提示できる条件が若干変化いたします。
お手数ですが、詳細につきましては、上記よりお問い合わせください。

周辺での似た条件の物件

非公開物件 多数あり!

お問い合わせフォーム