takeofficeなら掲載物件の仲介手数料は無料です

兜町第6平和ビル

住所 東京都中央区日本橋兜町6-5
交通 東京メトロ東西線茅場町」 徒歩2分
東京メトロ銀座線日本橋」 徒歩7分
竣工 1998年11月 構造 SRC
規模 地上8階, 地下1階 耐震基準 新耐震基準
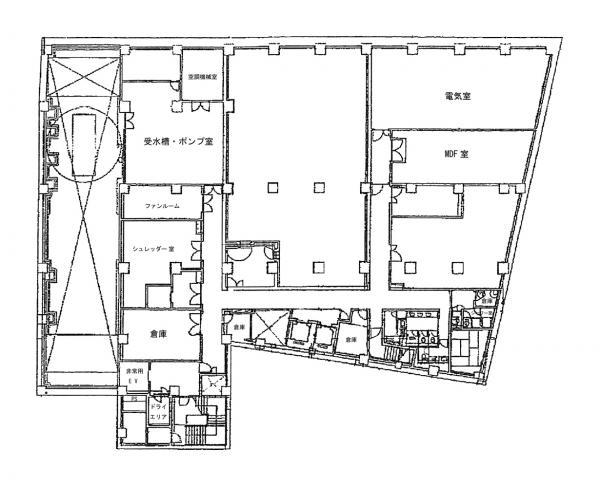
床構造 フリーアクセス 150mm 空調設備 個別空調
天井高 2700mm 基準階面積 276.63坪(914.48m2)
コンセント容量 70VA/m2 施工会社

最新の募集状況や類似物件については、
こちらにお問い合わせください。

兜町第6平和ビル 外観

外観

  • NOW PRINTING

    エントランス

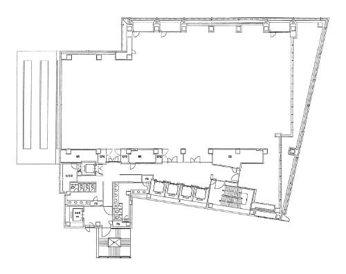
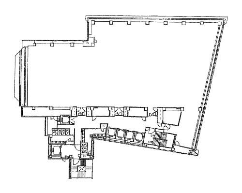
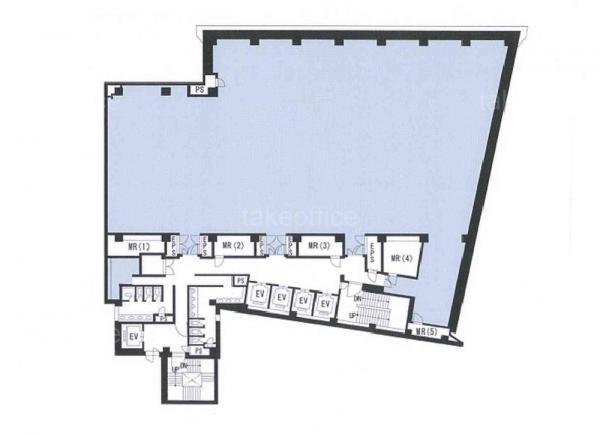
  • 基準階

    基準階

  • 1F

    1F

  • 2F

    2F

  • 3F

    3F

  • 4F

    4F

  • 8F

    8F

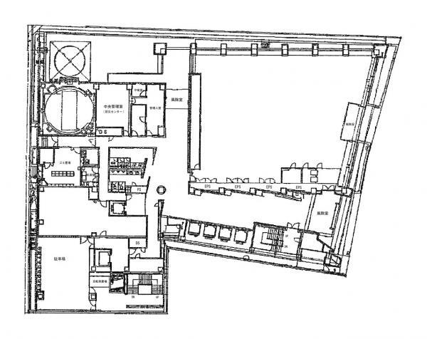
  • B1F

    B1F

内見やお見積りなどの各種お問い合わせ

全物件
仲介手数料無料
仲介から
入居工事まで
ワンストップで対応
経験豊富なスタッフが
スピード感をもって
対応

周辺での似た条件の物件

非公開物件 多数あり!

お問い合わせフォーム