takeofficeなら掲載物件の仲介手数料は無料です

住友不動産汐留浜離宮ビル

住所 東京都中央区銀座8-21-1
交通 都営大江戸線汐留」 徒歩5分
JR山手線新橋」 徒歩8分
東京メトロ日比谷線東銀座」 徒歩9分
竣工 2009年08月 構造 鉄骨造+SRC
規模 地上23階, 地下2階 耐震基準 新耐震基準
床構造 フリーアクセス 100mm 空調設備 個別空調
天井高 2800mm 基準階面積 450.87坪(1490.48m2)
コンセント容量 60VA/m2 施工会社

最新の募集状況や類似物件については、
こちらにお問い合わせください。

住友不動産汐留浜離宮ビル 外観

外観

  • 住友不動産汐留浜離宮ビル エントランス写真

    エントランス

  • 基準階(5~19F)

    基準階(5~19F)

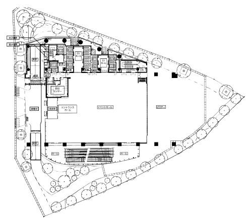
  • 1F

    1F

  • 20~21F

    20~21F

建物パンフレット

建物パンフレットは作成時点のものであり、また計画段階のものも含まれる為、実際とは異なる場合がございます。

内見やお見積りなどの各種お問い合わせ

全物件
仲介手数料無料
仲介から
入居工事まで
ワンストップで対応
経験豊富なスタッフが
スピード感をもって
対応

周辺での似た条件の物件

非公開物件 多数あり!

お問い合わせフォーム