takeofficeなら掲載物件の仲介手数料は無料です

住友新橋ビル

住所 東京都港区新橋1-8-3
交通 JR山手線新橋」 徒歩2分
東京メトロ銀座線新橋」 徒歩2分
都営大江戸線汐留」 徒歩5分
竣工 1966年08月 構造 SRC
規模 地上9階, 地下2階 耐震基準 旧耐震基準
床構造 フリーアクセス 70mm 空調設備 個別空調
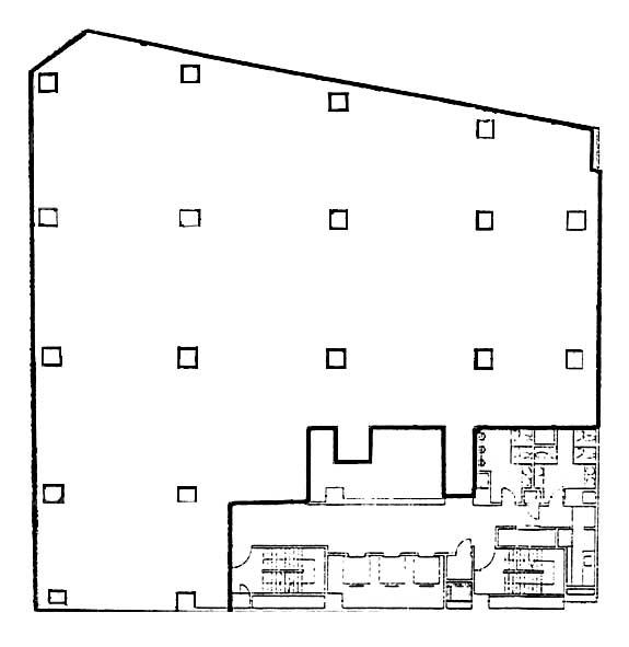
天井高 2470mm 基準階面積 245.49坪(811.54m2)
コンセント容量 70VA/m2 施工会社

最新の募集状況や類似物件については、
こちらにお問い合わせください。

住友新橋ビル 外観

外観

  • NOW PRINTING

    エントランス

  • 基準階

    基準階

内見やお見積りなどの各種お問い合わせ

全物件
仲介手数料無料
仲介から
入居工事まで
ワンストップで対応
経験豊富なスタッフが
スピード感をもって
対応

周辺での似た条件の物件

非公開物件 多数あり!

お問い合わせフォーム