takeofficeなら掲載物件の仲介手数料は無料です

康楽ビル

住所 東京都港区新橋1-12-10
交通 JR山手線新橋」 徒歩1分
都営三田線内幸町」 徒歩5分
都営大江戸線汐留」 徒歩7分
竣工 1965年11月 構造 SRC
規模 地上9階, 地下2階 耐震基準 旧耐震基準
床構造 - 空調設備 個別空調
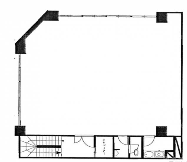
天井高 2800mm 基準階面積 34.14坪(112.86m2)
コンセント容量 - 施工会社

最新の募集状況や類似物件については、
こちらにお問い合わせください。

康楽ビル 外観

外観

  • NOW PRINTING

    エントランス

内見やお見積りなどの各種お問い合わせ

全物件
仲介手数料無料
仲介から
入居工事まで
ワンストップで対応
経験豊富なスタッフが
スピード感をもって
対応

周辺での似た条件の物件

非公開物件 多数あり!

お問い合わせフォーム