takeofficeなら掲載物件の仲介手数料は無料です

航空会館

住所 東京都港区新橋1-18-1
交通 都営三田線内幸町」 徒歩1分
JR山手線新橋」 徒歩5分
東京メトロ丸ノ内線霞ヶ関」 徒歩9分
竣工 1978年11月 構造 SRC
規模 地上9階, 地下1階 耐震基準 旧耐震基準
床構造 - 空調設備 -
天井高 2500mm 基準階面積 --
コンセント容量 - 施工会社

最新の募集状況や類似物件については、
こちらにお問い合わせください。

航空会館 外観

外観

  • 航空会館 エントランス写真

    エントランス

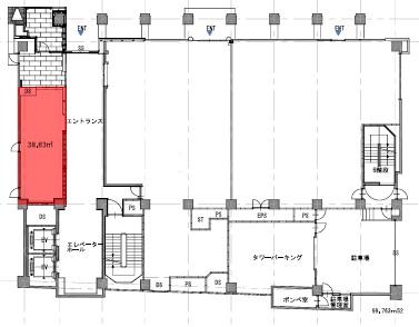
  • 1F

    1F

内見やお見積りなどの各種お問い合わせ

全物件
仲介手数料無料
仲介から
入居工事まで
ワンストップで対応
経験豊富なスタッフが
スピード感をもって
対応

周辺での似た条件の物件

非公開物件 多数あり!

お問い合わせフォーム