takeofficeなら掲載物件の仲介手数料は無料です

さくら新橋ビル

住所 東京都港区新橋2-6-1
交通 都営三田線内幸町」 徒歩2分
JR山手線新橋」 徒歩3分
都営大江戸線汐留」 徒歩11分
竣工 1979年11月 構造 SRC
規模 地上8階, 地下1階 耐震基準 旧耐震基準
床構造 - 空調設備 フロア別空調
天井高 - 基準階面積 130坪(430m2)
コンセント容量 - 施工会社

最新の募集状況や類似物件については、
こちらにお問い合わせください。

さくら新橋ビル 外観

外観

  • さくら新橋ビル エントランス写真

    エントランス

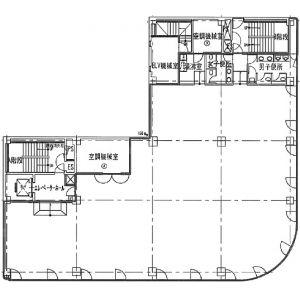
  • 基準階

    基準階

内見やお見積りなどの各種お問い合わせ

全物件
仲介手数料無料
仲介から
入居工事まで
ワンストップで対応
経験豊富なスタッフが
スピード感をもって
対応

周辺での似た条件の物件

非公開物件 多数あり!

お問い合わせフォーム