takeofficeなら掲載物件の仲介手数料は無料です

田中田村町ビル

住所 東京都港区新橋2-12-15
交通 都営三田線内幸町」 徒歩1分
JR東海道線新橋」 徒歩4分
東京メトロ銀座線虎ノ門」 徒歩8分
竣工 1966年01月 構造 SRC
規模 地上8階, 地下2階 耐震基準 旧耐震基準
床構造 フリーアクセス 50mm 空調設備 個別空調
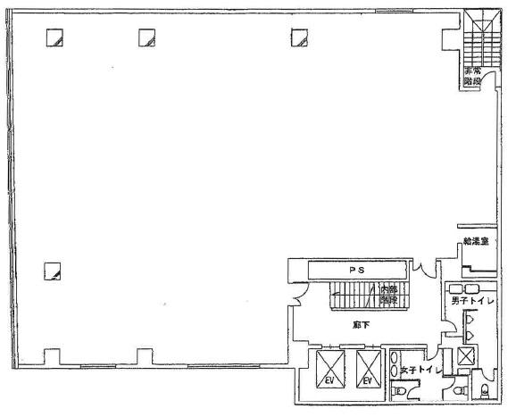
天井高 2850mm 基準階面積 143坪(473m2)
コンセント容量 96VA/m2 施工会社

最新の募集状況や類似物件については、
こちらにお問い合わせください。

田中田村町ビル 外観

外観

  • 田中田村町ビル エントランス写真

    エントランス

  • 基準階

    基準階

内見やお見積りなどの各種お問い合わせ

全物件
仲介手数料無料
仲介から
入居工事まで
ワンストップで対応
経験豊富なスタッフが
スピード感をもって
対応

周辺での似た条件の物件

非公開物件 多数あり!

お問い合わせフォーム