takeofficeなら掲載物件の仲介手数料は無料です

千代川ビル

住所 東京都港区新橋3-2-3
交通 都営三田線内幸町」 徒歩3分
JR山手線新橋」 徒歩4分
東京メトロ銀座線虎ノ門」 徒歩9分
竣工 1971年04月 構造 RC
規模 地上6階 耐震基準 旧耐震基準
床構造 - 空調設備 個別空調
天井高 - 基準階面積 30坪(99m2)
コンセント容量 - 施工会社

最新の募集状況や類似物件については、
こちらにお問い合わせください。

千代川ビル 外観

外観

  • 千代川ビル エントランス写真

    エントランス

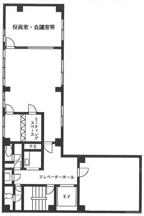
  • 3F

    3F

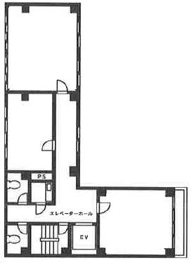
  • 5F

    5F

  • 6F

    6F

内見やお見積りなどの各種お問い合わせ

全物件
仲介手数料無料
仲介から
入居工事まで
ワンストップで対応
経験豊富なスタッフが
スピード感をもって
対応

周辺での似た条件の物件

非公開物件 多数あり!

お問い合わせフォーム