takeofficeなら掲載物件の仲介手数料は無料です

新橋OWKビル

住所 東京都港区新橋3-5-2
交通 JR山手線新橋」 徒歩4分
都営三田線内幸町」 徒歩4分
都営大江戸線汐留」 徒歩11分
竣工 1985年03月 構造 SRC
規模 地上8階, 地下0階 耐震基準 新耐震基準
床構造 - 空調設備 -
天井高 - 基準階面積 25.27坪(83.54m2)
コンセント容量 - 施工会社

最新の募集状況や類似物件については、
こちらにお問い合わせください。

新橋OWKビル 外観

外観

  • 新橋OWKビル エントランス写真

    エントランス

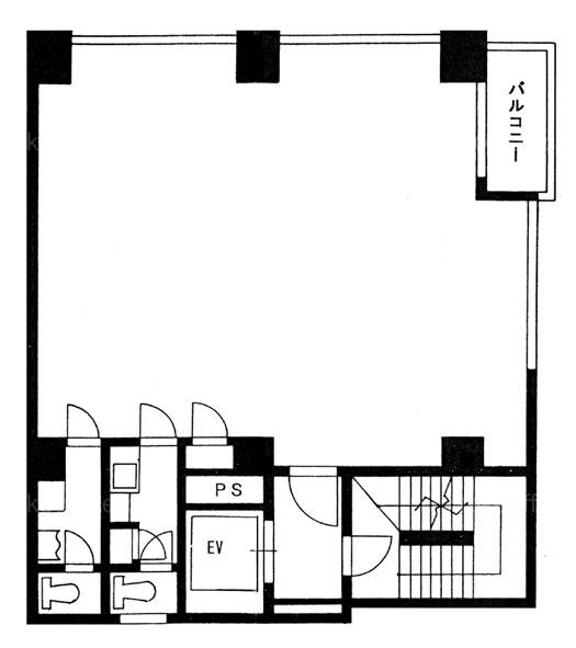
  • 基準階(3~5F)

    基準階(3~5F)

内見やお見積りなどの各種お問い合わせ

全物件
仲介手数料無料
仲介から
入居工事まで
ワンストップで対応
経験豊富なスタッフが
スピード感をもって
対応

周辺での似た条件の物件

非公開物件 多数あり!

お問い合わせフォーム