takeofficeなら掲載物件の仲介手数料は無料です

TKK第2新橋ビル

住所 東京都港区新橋3-15-4
交通 JR東海道線新橋」 徒歩3分
東京メトロ銀座線新橋」 徒歩3分
都営大江戸線汐留」 徒歩6分
竣工 2003年12月 構造 鉄骨造
規模 地上7階, 地下1階 耐震基準 新耐震基準
床構造 フリーアクセス 50mm 空調設備 個別空調
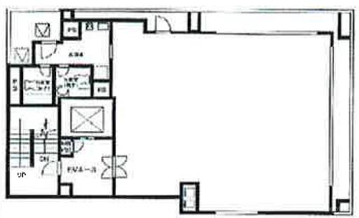
天井高 2500mm 基準階面積 39.18坪(129.52m2)
コンセント容量 100VA/m2 施工会社

最新の募集状況や類似物件については、
こちらにお問い合わせください。

TKK第2新橋ビル 外観

外観

内見やお見積りなどの各種お問い合わせ

全物件
仲介手数料無料
仲介から
入居工事まで
ワンストップで対応
経験豊富なスタッフが
スピード感をもって
対応

周辺での似た条件の物件

非公開物件 多数あり!

お問い合わせフォーム