takeofficeなら掲載物件の仲介手数料は無料です

アーバン新橋ビル

住所 東京都港区新橋4-5-1
交通 JR山手線新橋」 徒歩3分
東京メトロ銀座線新橋」 徒歩3分
ゆりかもめ新橋」 徒歩3分
竣工 1992年04月 構造 SRC+鉄骨造
規模 地上14階, 地下2階 耐震基準 新耐震基準
床構造 フリーアクセス 空調設備 個別空調
天井高 2500mm 基準階面積 146.75坪(485.12m2)
コンセント容量 - 施工会社

最新の募集状況や類似物件については、
こちらにお問い合わせください。

アーバン新橋ビル 外観

外観

  • アーバン新橋ビル エントランス写真

    エントランス

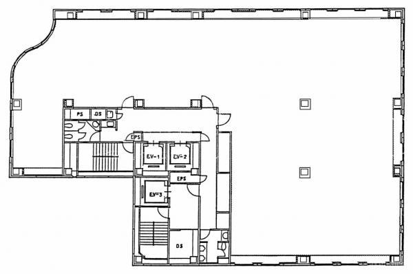
  • 基準階(2~9F)

    基準階(2~9F)

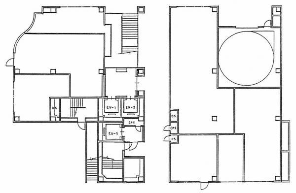
  • 1F

    1F

  • 10F

    10F

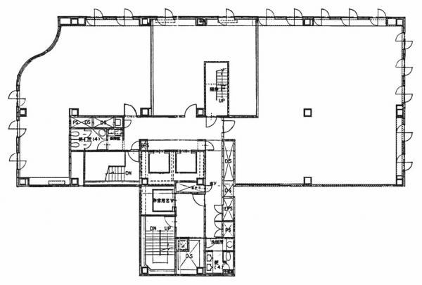
  • 11F

    11F

  • 12F

    12F

内見やお見積りなどの各種お問い合わせ

全物件
仲介手数料無料
仲介から
入居工事まで
ワンストップで対応
経験豊富なスタッフが
スピード感をもって
対応

周辺での似た条件の物件

非公開物件 多数あり!

お問い合わせフォーム