takeofficeなら掲載物件の仲介手数料は無料です

IMCビル新橋

住所 東京都港区新橋5-5-1
交通 JR山手線新橋」 徒歩6分
都営三田線御成門」 徒歩6分
竣工 2002年08月 構造 SRC+鉄骨造
規模 地上9階, 地下1階 耐震基準 新耐震基準
床構造 フリーアクセス 100mm 空調設備 個別空調
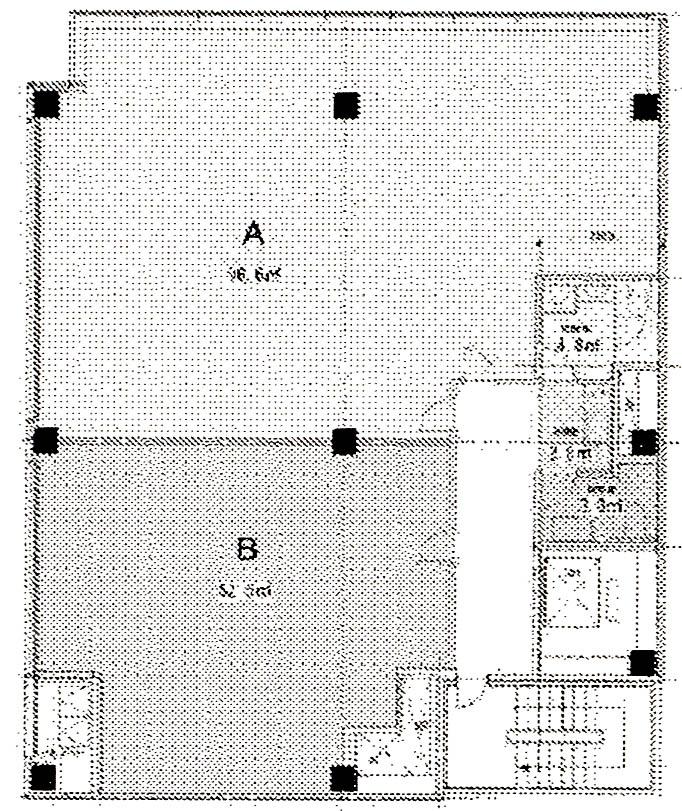
天井高 2560mm 基準階面積 51.73坪(171.01m2)
コンセント容量 - 施工会社

最新の募集状況や類似物件については、
こちらにお問い合わせください。

IMCビル新橋 外観

外観

内見やお見積りなどの各種お問い合わせ

全物件
仲介手数料無料
仲介から
入居工事まで
ワンストップで対応
経験豊富なスタッフが
スピード感をもって
対応

周辺での似た条件の物件

非公開物件 多数あり!

お問い合わせフォーム