takeofficeなら掲載物件の仲介手数料は無料です

新橋菊栄ビル

住所 東京都港区新橋5-13-1
交通 JR山手線新橋」 徒歩5分
都営大江戸線汐留」 徒歩4分
竣工 2010年03月 構造 鉄骨造+SRC
規模 地上9階, 地下1階 耐震基準 新耐震基準
床構造 フリーアクセス 100mm 空調設備 個別空調
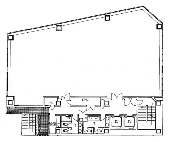
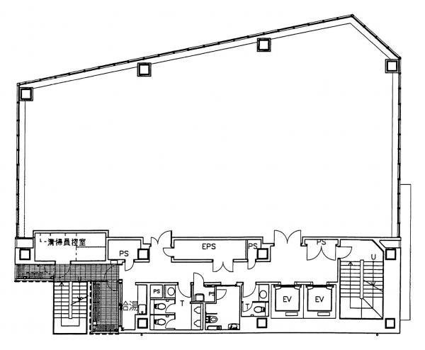
天井高 2700mm 基準階面積 84.12坪(278.08m2)
コンセント容量 50VA/m2 施工会社

最新の募集状況や類似物件については、
こちらにお問い合わせください。

新橋菊栄ビル 外観

外観

内見やお見積りなどの各種お問い合わせ

全物件
仲介手数料無料
仲介から
入居工事まで
ワンストップで対応
経験豊富なスタッフが
スピード感をもって
対応

周辺での似た条件の物件

非公開物件 多数あり!

お問い合わせフォーム