takeofficeなら掲載物件の仲介手数料は無料です

三陽ビル

住所 東京都港区新橋5-19-1
交通 都営三田線御成門」 徒歩4分
JR山手線新橋」 徒歩7分
都営大江戸線汐留」 徒歩9分
竣工 1974年12月 構造 SRC
規模 地上8階 耐震基準 旧耐震基準
床構造 - 空調設備 個別空調
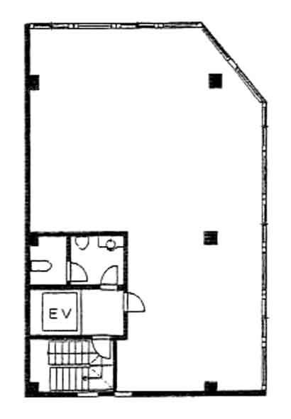
天井高 - 基準階面積 31.5坪(104.13m2)
コンセント容量 - 施工会社

最新の募集状況や類似物件については、
こちらにお問い合わせください。

三陽ビル 外観

外観

  • 三陽ビル エントランス写真

    エントランス

  • 基準階

    基準階

  • 5F

    5F

内見やお見積りなどの各種お問い合わせ

全物件
仲介手数料無料
仲介から
入居工事まで
ワンストップで対応
経験豊富なスタッフが
スピード感をもって
対応

周辺での似た条件の物件

非公開物件 多数あり!

お問い合わせフォーム