takeofficeなら掲載物件の仲介手数料は無料です

松岡田村町ビル

住所 東京都港区新橋5-22-10
交通 都営三田線御成門」 徒歩4分
JR山手線新橋」 徒歩10分
竣工 1974年02月 構造 SRC
規模 地上8階, 地下2階 耐震基準 新耐震基準
床構造 フリーアクセス 50mm 空調設備 個別空調
天井高 2350mm 基準階面積 134.63坪(445.06m2)
コンセント容量 - 施工会社

最新の募集状況や類似物件については、
こちらにお問い合わせください。

松岡田村町ビル 外観

外観

  • 松岡田村町ビル エントランス写真

    エントランス

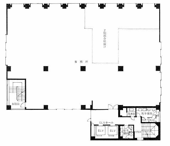
  • 基準階(2~8F)

    基準階(2~8F)

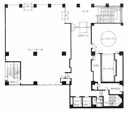
  • 1F

    1F

内見やお見積りなどの各種お問い合わせ

全物件
仲介手数料無料
仲介から
入居工事まで
ワンストップで対応
経験豊富なスタッフが
スピード感をもって
対応

周辺での似た条件の物件

非公開物件 多数あり!

お問い合わせフォーム