takeofficeなら掲載物件の仲介手数料は無料です

新橋安達ビル

住所 東京都港区新橋5-28-7
交通 東京メトロ銀座線新橋」 徒歩6分
都営三田線御成門」 徒歩6分
都営大江戸線汐留」 徒歩7分
竣工 1984年01月 構造 SRC
規模 地上8階, 地下1階 耐震基準 新耐震基準
床構造 - 空調設備 個別空調
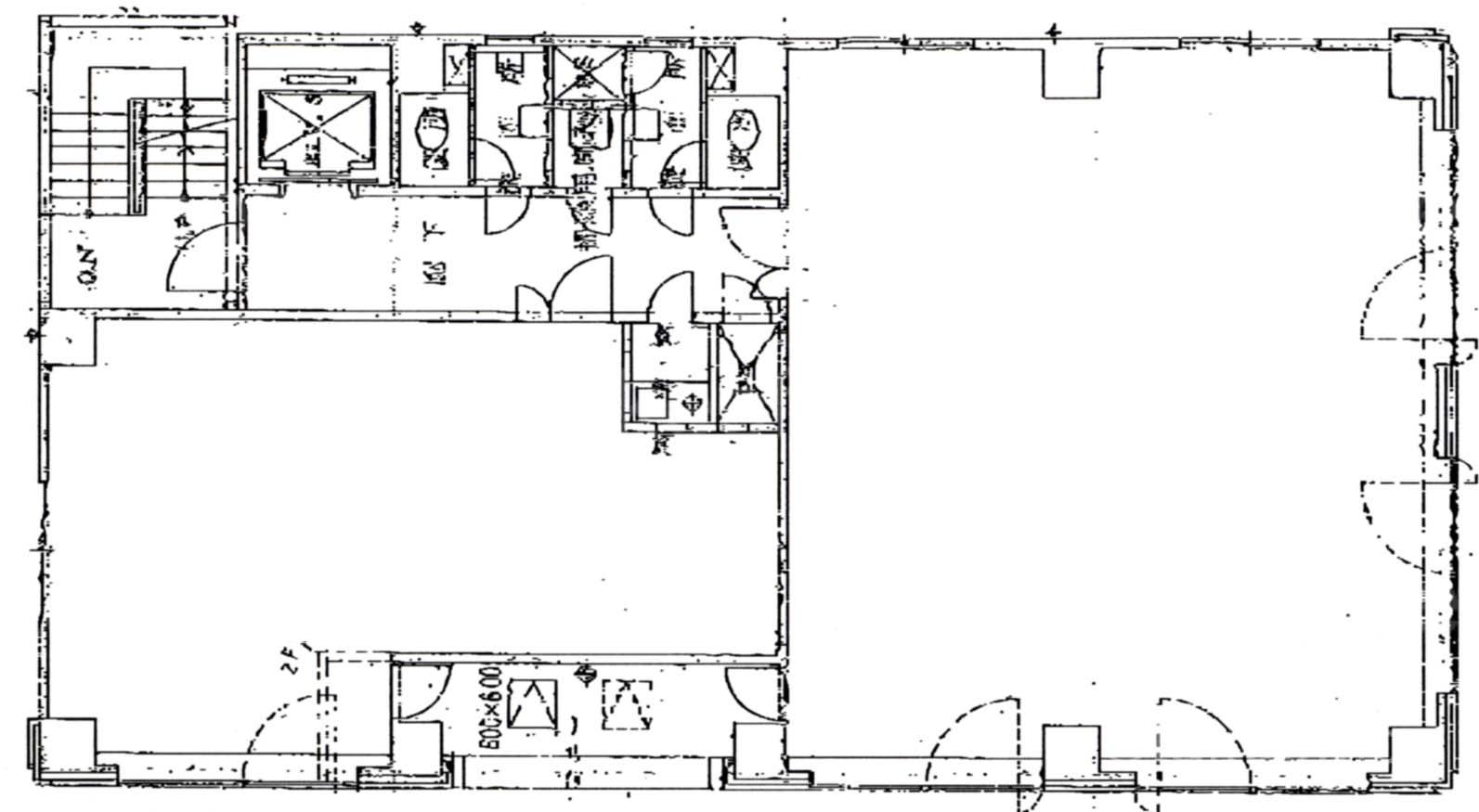
天井高 - 基準階面積 45.61坪(150.78m2)
コンセント容量 - 施工会社

最新の募集状況や類似物件については、
こちらにお問い合わせください。

新橋安達ビル 外観

外観

  • 新橋安達ビル エントランス写真

    エントランス

  • 基準階(2~6F)

    基準階(2~6F)

  • 4F

    4F

内見やお見積りなどの各種お問い合わせ

全物件
仲介手数料無料
仲介から
入居工事まで
ワンストップで対応
経験豊富なスタッフが
スピード感をもって
対応

周辺での似た条件の物件

非公開物件 多数あり!

お問い合わせフォーム