takeofficeなら掲載物件の仲介手数料は無料です

今朝ビル

住所 東京都港区東新橋1-1-21
交通 JR山手線新橋」 徒歩2分
東京メトロ銀座線新橋」 徒歩2分
都営大江戸線汐留」 徒歩2分
竣工 1964年05月 構造 SRC
規模 地上9階, 地下1階 耐震基準 新耐震基準
床構造 フリーアクセス 50mm 空調設備 セントラル+個別
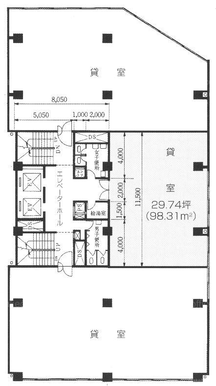
天井高 2650mm 基準階面積 153坪(505m2)
コンセント容量 - 施工会社

最新の募集状況や類似物件については、
こちらにお問い合わせください。

今朝ビル 外観

外観

内見やお見積りなどの各種お問い合わせ

全物件
仲介手数料無料
仲介から
入居工事まで
ワンストップで対応
経験豊富なスタッフが
スピード感をもって
対応

周辺での似た条件の物件

非公開物件 多数あり!

お問い合わせフォーム