takeofficeなら掲載物件の仲介手数料は無料です

日金ビル

住所 東京都港区東新橋1-2-16
交通 JR山手線新橋」 徒歩2分
東京メトロ銀座線新橋」 徒歩2分
都営大江戸線汐留」 徒歩5分
竣工 1971年09月 構造 RC
規模 地上10階, 地下1階 耐震基準 旧耐震基準
床構造 - 空調設備 個別空調
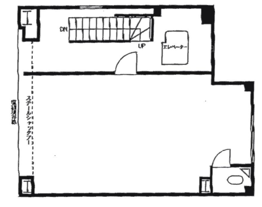
天井高 - 基準階面積 16坪(52.89m2)
コンセント容量 - 施工会社

最新の募集状況や類似物件については、
こちらにお問い合わせください。

日金ビル 外観

外観

  • NOW PRINTING

    エントランス

  • 2F~8F

    2F~8F

  • 1F

    1F

内見やお見積りなどの各種お問い合わせ

全物件
仲介手数料無料
仲介から
入居工事まで
ワンストップで対応
経験豊富なスタッフが
スピード感をもって
対応

周辺での似た条件の物件

非公開物件 多数あり!

お問い合わせフォーム