takeofficeなら掲載物件の仲介手数料は無料です

汐留スクエアビル

住所 東京都港区東新橋2-7-7
交通 JR山手線新橋」 徒歩8分
都営大江戸線汐留」 徒歩5分
都営三田線御成門」 徒歩7分
竣工 1971年08月 構造 SRC
規模 地上10階 耐震基準 旧耐震基準
床構造 フリーアクセス 50mm 空調設備 個別空調
天井高 - 基準階面積 42.97坪(142.05m2)
コンセント容量 - 施工会社

最新の募集状況や類似物件については、
こちらにお問い合わせください。

汐留スクエアビル 外観

外観

  • NOW PRINTING

    エントランス

  • 基準階(2~10F)

    基準階(2~10F)

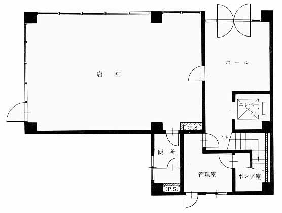
  • 1F

    1F

内見やお見積りなどの各種お問い合わせ

全物件
仲介手数料無料
仲介から
入居工事まで
ワンストップで対応
経験豊富なスタッフが
スピード感をもって
対応

周辺での似た条件の物件

非公開物件 多数あり!

お問い合わせフォーム