takeofficeなら掲載物件の仲介手数料は無料です

YAHATA汐留ビル

住所 東京都港区東新橋2-9-7
交通 JR山手線新橋」 徒歩7分
JR京浜東北線浜松町」 徒歩6分
都営大江戸線大門」 徒歩6分
竣工 2006年07月 構造 鉄骨造
規模 地上11階 耐震基準 新耐震基準
床構造 フリーアクセス 50mm 空調設備 個別空調
天井高 2600mm 基準階面積 18.79坪(62.12m2)
コンセント容量 - 施工会社

最新の募集状況や類似物件については、
こちらにお問い合わせください。

YAHATA汐留ビル 外観

外観

  • YAHATA汐留ビル エントランス写真

    エントランス

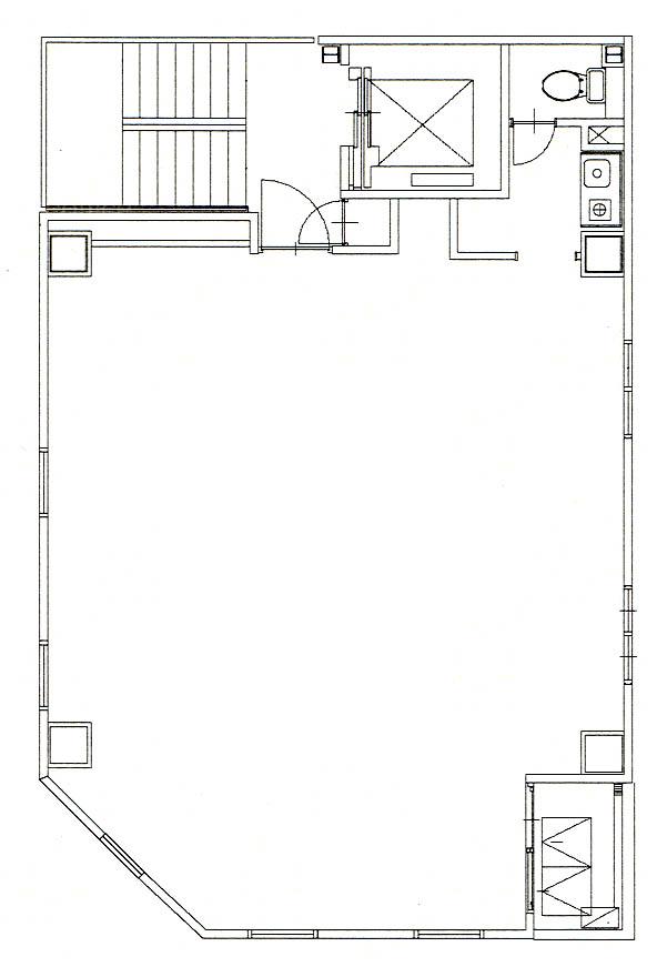
  • 基準階3-9F

    基準階3-9F

内見やお見積りなどの各種お問い合わせ

全物件
仲介手数料無料
仲介から
入居工事まで
ワンストップで対応
経験豊富なスタッフが
スピード感をもって
対応

※「ご相談」と記載されている項目について
賃貸人が募集賃料条件を守秘義務の関係から明示していない場合に、【ご相談】と記載しております。
フリーレント(賃料免除)期間、使用面積、入居時期、テナント様の与信などによりご提示できる条件が若干変化いたします。
お手数ですが、詳細につきましては、上記よりお問い合わせください。

周辺での似た条件の物件

非公開物件 多数あり!

お問い合わせフォーム