takeofficeなら掲載物件の仲介手数料は無料です

G10

住所 東京都港区新橋1-4-5
交通 JR山手線新橋」 徒歩2分
東京メトロ銀座線新橋」 徒歩2分
竣工 2008年10月 構造 RC
規模 地上10階, 地下1階 耐震基準 新耐震基準
床構造 - 空調設備
天井高 - 基準階面積 60.07坪(198.58m2)
コンセント容量 - 施工会社

最新の募集状況や類似物件については、
こちらにお問い合わせください。

G10 外観

外観

  • G10 エントランス写真

    エントランス

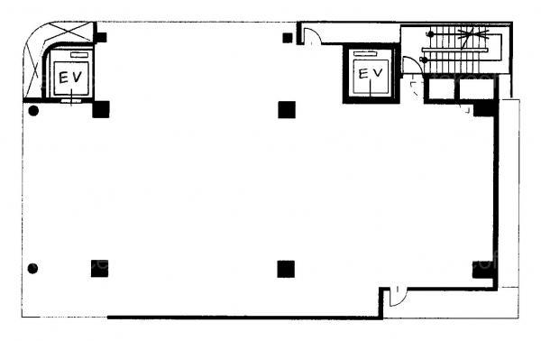
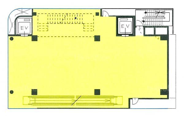
  • 基準階(2~4F)

    基準階(2~4F)

  • 1F

    1F

  • 5F

    5F

  • 6~8F

    6~8F

  • 9F

    9F

  • 10F

    10F

内見やお見積りなどの各種お問い合わせ

全物件
仲介手数料無料
仲介から
入居工事まで
ワンストップで対応
経験豊富なスタッフが
スピード感をもって
対応

周辺での似た条件の物件

非公開物件 多数あり!

お問い合わせフォーム