takeofficeなら掲載物件の仲介手数料は無料です

301 SHIMBASHI BUILDING

住所 東京都港区新橋3-1-9
交通 都営三田線内幸町」 徒歩4分
JR山手線新橋」 徒歩6分
東京メトロ銀座線新橋」 徒歩6分
竣工 2005年09月 構造 鉄骨造
規模 地上8階 耐震基準 新耐震基準
床構造 フリーアクセス 100mm 空調設備 個別空調
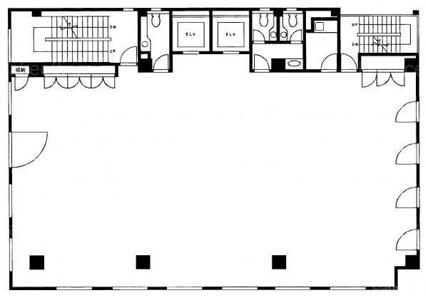
天井高 2980mm 基準階面積 86.37坪(285.52m2)
コンセント容量 150VA/m2 施工会社

最新の募集状況や類似物件については、
こちらにお問い合わせください。

301 SHIMBASHI BUILDING 外観

外観

内見やお見積りなどの各種お問い合わせ

全物件
仲介手数料無料
仲介から
入居工事まで
ワンストップで対応
経験豊富なスタッフが
スピード感をもって
対応

周辺での似た条件の物件

非公開物件 多数あり!

お問い合わせフォーム