takeofficeなら掲載物件の仲介手数料は無料です

汐留AZビル

住所 東京都港区東新橋2-6-6
交通 JR山手線新橋」 徒歩7分
竣工 1985年04月 構造 SRC
規模 地上8階, 地下1階 耐震基準 -
床構造 - 空調設備 個別空調
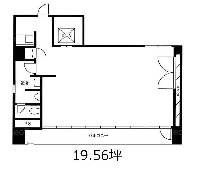
天井高 - 基準階面積 35.09坪(116m2)
コンセント容量 - 施工会社

最新の募集状況や類似物件については、
こちらにお問い合わせください。

汐留AZビル 外観

外観

内見やお見積りなどの各種お問い合わせ

全物件
仲介手数料無料
仲介から
入居工事まで
ワンストップで対応
経験豊富なスタッフが
スピード感をもって
対応

周辺での似た条件の物件

非公開物件 多数あり!

お問い合わせフォーム