takeofficeなら掲載物件の仲介手数料は無料です

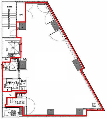
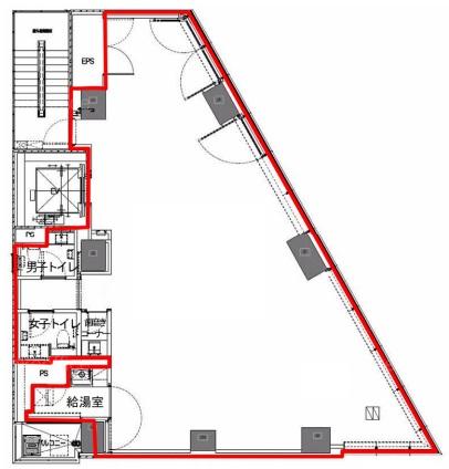
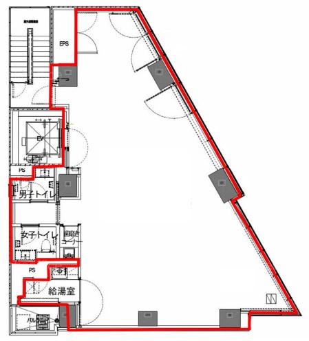
アトリウム東新橋

住所 東京都港区東新橋1-1-2
交通 東京メトロ銀座線新橋」 徒歩2分
都営大江戸線汐留」 徒歩3分
JR山手線新橋」 徒歩4分
竣工 2024年04月 構造 RC
規模 地上12階 耐震基準 新耐震基準
床構造 フリーアクセス 50mm 空調設備 個別空調
天井高 2600mm 基準階面積 35.68坪(117.95m2)
コンセント容量 - 施工会社 戸田建設
坪面積 用途 賃料 坪単価 共益費 入居可能日
11 34.5坪 事務所 相談 相談 相談
アトリウム東新橋 外観

外観

内見やお見積りなどの各種お問い合わせ

全物件
仲介手数料無料
仲介から
入居工事まで
ワンストップで対応
経験豊富なスタッフが
スピード感をもって
対応

※「ご相談」と記載されている項目について
賃貸人が募集賃料条件を守秘義務の関係から明示していない場合に、【ご相談】と記載しております。
フリーレント(賃料免除)期間、使用面積、入居時期、テナント様の与信などによりご提示できる条件が若干変化いたします。
お手数ですが、詳細につきましては、上記よりお問い合わせください。

周辺での似た条件の物件

非公開物件 多数あり!

お問い合わせフォーム