takeofficeなら掲載物件の仲介手数料は無料です

西新橋1丁目川手ビル

住所 東京都港区西新橋1-5-8
交通 都営三田線内幸町」 徒歩1分
JR山手線新橋」 徒歩4分
東京メトロ銀座線虎ノ門」 徒歩4分
竣工 2003年05月 構造 鉄骨造+RC
規模 地上11階, 地下1階 耐震基準 新耐震基準
床構造 フリーアクセス 50mm 空調設備 個別空調
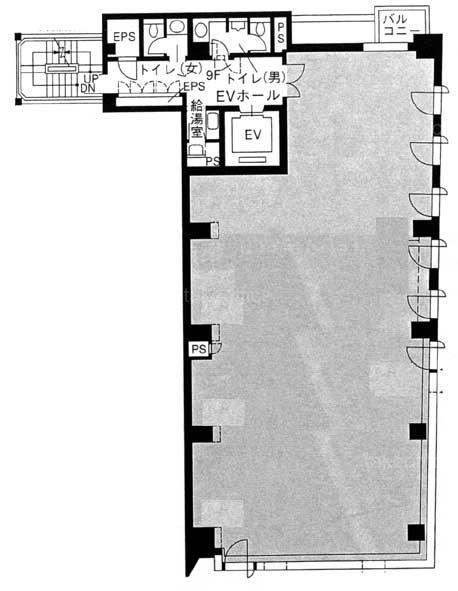
天井高 2500mm 基準階面積 49.46坪(163.5m2)
コンセント容量 - 施工会社

最新の募集状況や類似物件については、
こちらにお問い合わせください。

西新橋1丁目川手ビル 外観

外観

内見やお見積りなどの各種お問い合わせ

全物件
仲介手数料無料
仲介から
入居工事まで
ワンストップで対応
経験豊富なスタッフが
スピード感をもって
対応

周辺での似た条件の物件

非公開物件 多数あり!

お問い合わせフォーム