takeofficeなら掲載物件の仲介手数料は無料です

西新橋光和ビルディング

住所 東京都港区西新橋1-6-11
交通 都営三田線内幸町」 徒歩3分
東京メトロ銀座線虎ノ門」 徒歩3分
東京メトロ丸ノ内線霞ヶ関」 徒歩5分
竣工 1973年06月 構造 SRC
規模 地上9階, 地下1階 耐震基準 耐震診断書有
床構造 フリーアクセス 50mm 空調設備 個別空調
天井高 2640mm 基準階面積 120坪(396m2)
コンセント容量 - 施工会社

最新の募集状況や類似物件については、
こちらにお問い合わせください。

西新橋光和ビルディング 外観

外観

  • 西新橋光和ビルディング エントランス写真

    エントランス

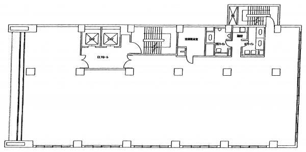
  • 基準階

    基準階

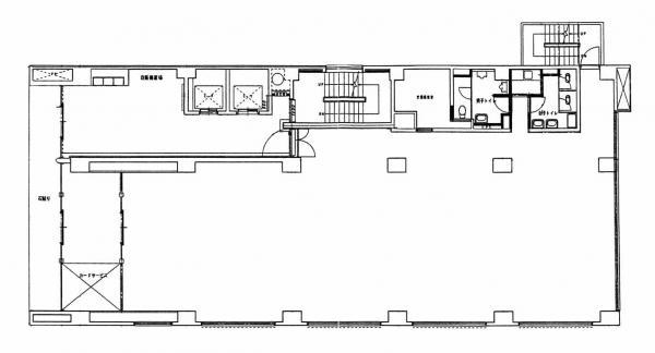
  • 1F

    1F

  • 2F

    2F

内見やお見積りなどの各種お問い合わせ

全物件
仲介手数料無料
仲介から
入居工事まで
ワンストップで対応
経験豊富なスタッフが
スピード感をもって
対応

周辺での似た条件の物件

非公開物件 多数あり!

お問い合わせフォーム