takeofficeなら掲載物件の仲介手数料は無料です

西山興業西新橋ビル

住所 東京都港区西新橋1-12-6
交通 東京メトロ銀座線新橋」 徒歩3分
JR山手線新橋」 徒歩5分
都営三田線内幸町」 徒歩2分
竣工 1972年01月 構造 SRC
規模 地上7階, 地下1階 耐震基準 旧耐震基準
床構造 - 空調設備 -
天井高 - 基準階面積 34.34坪(113.52m2)
コンセント容量 - 施工会社

最新の募集状況や類似物件については、
こちらにお問い合わせください。

西山興業西新橋ビル 外観

外観

  • NOW PRINTING

    エントランス

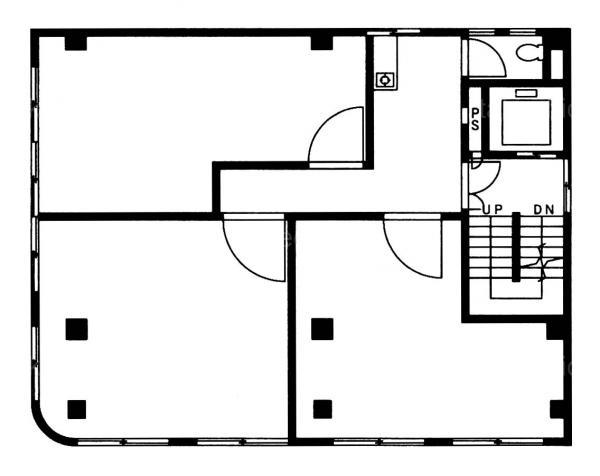
  • 基準階(3~5F)

    基準階(3~5F)

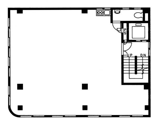
  • 6F

    6F

内見やお見積りなどの各種お問い合わせ

全物件
仲介手数料無料
仲介から
入居工事まで
ワンストップで対応
経験豊富なスタッフが
スピード感をもって
対応

周辺での似た条件の物件

非公開物件 多数あり!

お問い合わせフォーム