takeofficeなら掲載物件の仲介手数料は無料です

ワカサビル

住所 東京都港区西新橋2-8-1
交通 都営三田線内幸町」 徒歩4分
JR山手線新橋」 徒歩7分
東京メトロ銀座線虎ノ門」 徒歩8分
竣工 1994年01月 構造 RC
規模 地上5階, 地下0階 耐震基準 新耐震基準
床構造 - 空調設備 個別空調
天井高 2320mm 基準階面積 34坪(115m2)
コンセント容量 - 施工会社
坪面積 用途 賃料 坪単価 共益費 入居可能日
1 15.45坪 事務所 ¥278,100(税込 ¥305,910) ¥18,000(税込 ¥19,800) 含む 2026年2月中旬
ワカサビル 外観

外観

  • ワカサビル エントランス写真

    エントランス

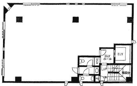
  • 基準階

    基準階

  • 4F

    4F

内見やお見積りなどの各種お問い合わせ

全物件
仲介手数料無料
仲介から
入居工事まで
ワンストップで対応
経験豊富なスタッフが
スピード感をもって
対応

※「ご相談」と記載されている項目について
賃貸人が募集賃料条件を守秘義務の関係から明示していない場合に、【ご相談】と記載しております。
フリーレント(賃料免除)期間、使用面積、入居時期、テナント様の与信などによりご提示できる条件が若干変化いたします。
お手数ですが、詳細につきましては、上記よりお問い合わせください。

非公開物件 多数あり!

お問い合わせフォーム