takeofficeなら掲載物件の仲介手数料は無料です

KCビル(旧NKビル)

住所 東京都港区西新橋2-34-4
交通 東京メトロ銀座線虎ノ門」 徒歩7分
JR総武線(快速)新日本橋」 徒歩4分
東京メトロ銀座線三越前」 徒歩5分
竣工 2002年03月 構造 鉄骨造
規模 地上9階 耐震基準 新耐震基準
床構造 フリーアクセス 50mm 空調設備 個別空調
天井高 2600mm 基準階面積 85.62坪(283.04m2)
コンセント容量 50VA/m2 施工会社

最新の募集状況や類似物件については、
こちらにお問い合わせください。

KCビル(旧NKビル) 外観

外観

  • KCビル(旧NKビル) エントランス写真

    エントランス

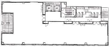
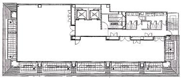
  • 基準階(4~7F)

    基準階(4~7F)

  • 1F

    1F

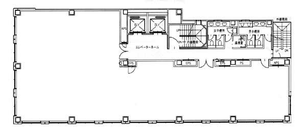
  • 2~3F

    2~3F

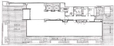
  • 8F

    8F

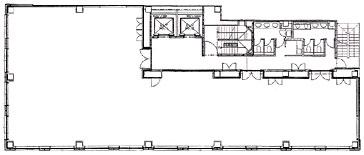
  • 9F

    9F

内見やお見積りなどの各種お問い合わせ

全物件
仲介手数料無料
仲介から
入居工事まで
ワンストップで対応
経験豊富なスタッフが
スピード感をもって
対応

周辺での似た条件の物件

非公開物件 多数あり!

お問い合わせフォーム