takeofficeなら掲載物件の仲介手数料は無料です

西新橋NKビル

住所 東京都港区西新橋2-38-5
交通 都営三田線内幸町」 徒歩6分
JR山手線新橋」 徒歩9分
東京メトロ銀座線新橋」 徒歩10分
竣工 1988年08月 構造 SRC+RC
規模 地上9階, 地下1階 耐震基準 新耐震基準
床構造 フリーアクセス 空調設備 フロア別空調
天井高 2450mm 基準階面積 158.04坪(522.46m2)
コンセント容量 - 施工会社 フジタ東京支店

最新の募集状況や類似物件については、
こちらにお問い合わせください。

西新橋NKビル 外観

外観

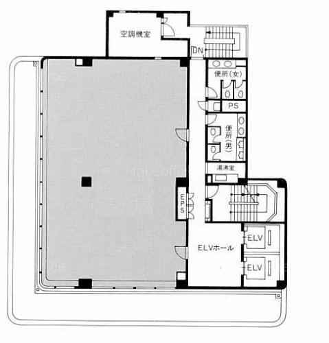
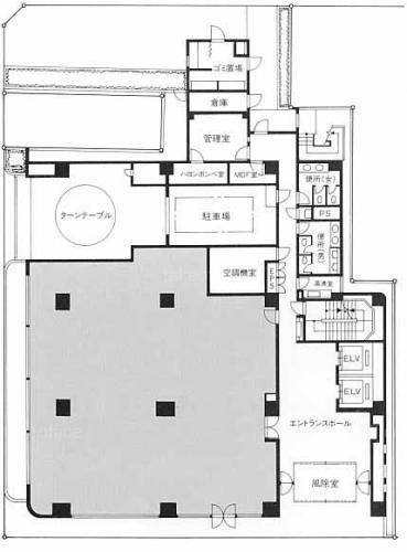
建物パンフレット

建物パンフレットは作成時点のものであり、また計画段階のものも含まれる為、実際とは異なる場合がございます。

内見やお見積りなどの各種お問い合わせ

全物件
仲介手数料無料
仲介から
入居工事まで
ワンストップで対応
経験豊富なスタッフが
スピード感をもって
対応

周辺での似た条件の物件

非公開物件 多数あり!

お問い合わせフォーム