takeofficeなら掲載物件の仲介手数料は無料です

KDX西新橋ビル

住所 東京都港区西新橋3-3-1
交通 都営三田線御成門」 徒歩7分
東京メトロ日比谷線神谷町」 徒歩9分
東京メトロ銀座線虎ノ門」 徒歩9分
竣工 1992年08月 構造 SRC+RC
規模 地上11階, 地下1階 耐震基準 新耐震基準
床構造 フリーアクセス 50mm 空調設備 個別空調
天井高 2600mm 基準階面積 151.9坪(502.15m2)
コンセント容量 - 施工会社

最新の募集状況や類似物件については、
こちらにお問い合わせください。

KDX西新橋ビル 外観

外観

  • KDX西新橋ビル エントランス写真

    エントランス

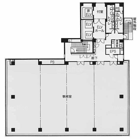
  • 基準階(5~7F)

    基準階(5~7F)

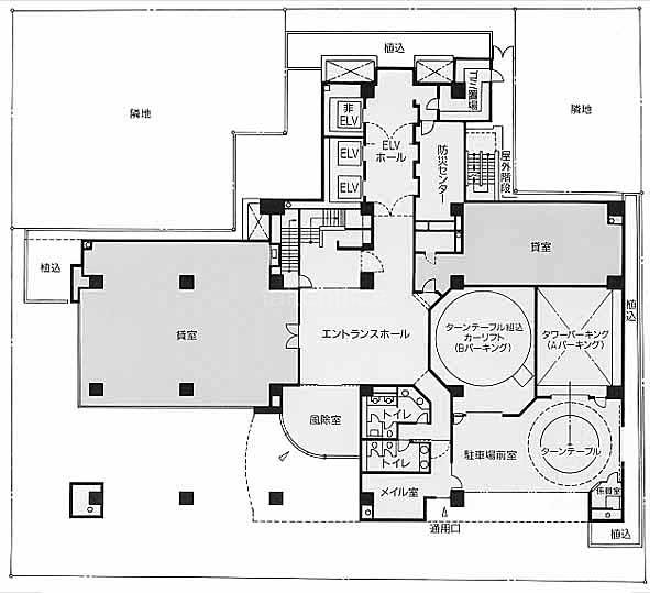
  • 1F

    1F

  • 2F

    2F

  • 3~4F

    3~4F

  • 8~10F

    8~10F

  • 11F

    11F

内見やお見積りなどの各種お問い合わせ

全物件
仲介手数料無料
仲介から
入居工事まで
ワンストップで対応
経験豊富なスタッフが
スピード感をもって
対応

周辺での似た条件の物件

非公開物件 多数あり!

お問い合わせフォーム