takeofficeなら掲載物件の仲介手数料は無料です

渡瀬ビル

住所 東京都港区西新橋3-5-8
交通 都営三田線御成門」 徒歩4分
東京メトロ銀座線虎ノ門」 徒歩6分
JR東海道線新橋」 徒歩9分
竣工 1987年12月 構造 SRC
規模 地上7階 耐震基準 新耐震基準
床構造 - 空調設備 個別空調
天井高 - 基準階面積 49.88坪(164.89m2)
コンセント容量 - 施工会社

最新の募集状況や類似物件については、
こちらにお問い合わせください。

渡瀬ビル 外観

外観

  • NOW PRINTING

    エントランス

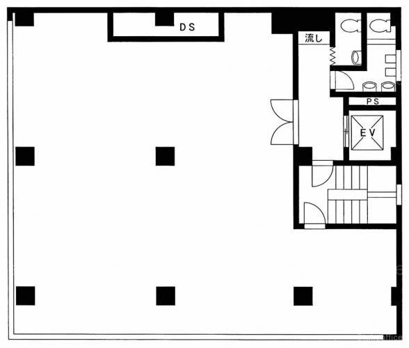
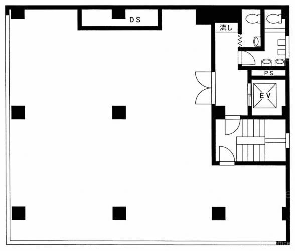
  • 基準階(5~6F)

    基準階(5~6F)

  • 4F

    4F

  • 7~9F

    7~9F

内見やお見積りなどの各種お問い合わせ

全物件
仲介手数料無料
仲介から
入居工事まで
ワンストップで対応
経験豊富なスタッフが
スピード感をもって
対応

周辺での似た条件の物件

非公開物件 多数あり!

お問い合わせフォーム