takeofficeなら掲載物件の仲介手数料は無料です

邦洋西新橋ビル

住所 東京都港区西新橋3-5-9
交通 都営三田線御成門」 徒歩7分
都営三田線内幸町」 徒歩7分
東京メトロ銀座線虎ノ門」 徒歩7分
竣工 1971年03月 構造 RC
規模 地上5階, 地下0階 耐震基準 旧耐震基準
床構造 フリーアクセス 空調設備 個別空調
天井高 2380mm 基準階面積 --
コンセント容量 - 施工会社

最新の募集状況や類似物件については、
こちらにお問い合わせください。

邦洋西新橋ビル 外観

外観

  • 邦洋西新橋ビル エントランス写真

    エントランス

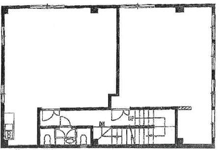
  • 2F

    2F

内見やお見積りなどの各種お問い合わせ

全物件
仲介手数料無料
仲介から
入居工事まで
ワンストップで対応
経験豊富なスタッフが
スピード感をもって
対応

周辺での似た条件の物件

非公開物件 多数あり!

お問い合わせフォーム