takeofficeなら掲載物件の仲介手数料は無料です

入江ビル

住所 東京都港区西新橋3-6-5
交通 都営三田線御成門」 徒歩5分
都営三田線内幸町」 徒歩6分
東京メトロ銀座線虎ノ門」 徒歩7分
竣工 1970年03月 構造 RC
規模 地上5階, 地下1階 耐震基準 旧耐震基準
床構造 - 空調設備 -
天井高 - 基準階面積 --
コンセント容量 - 施工会社

最新の募集状況や類似物件については、
こちらにお問い合わせください。

NOW PRINTING

外観

  • NOW PRINTING

    エントランス

  • 1F

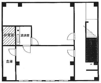
    1F

  • B1F

    B1F

内見やお見積りなどの各種お問い合わせ

全物件
仲介手数料無料
仲介から
入居工事まで
ワンストップで対応
経験豊富なスタッフが
スピード感をもって
対応

周辺での似た条件の物件

非公開物件 多数あり!

お問い合わせフォーム